Автоматический угольный котел 200 КВт предназначен для отопления коттеджей, загородных домов, складских, ремонтных баз, офисных зданий, производственных помещений, СТО, теплиц и животноводческих комплексов площадью 1200 до 2200 м2. Данная модель позволяет обеспечивать вас теплом и горячей водой, без необходимости постоянного присутствия кочегара в котельной.
Уникальная система подачи топлива и горелки позволяют работать на каменном и буром угле фракцией до 100 мм.
Особенностью угольного котла с автоматической подачей топлива нашего производства является работа на каменных и бурых углях фракцией топлива от 0 до 100 мм. На сегодняшний день это уникальное предложение на рынке отечественных автоматических отопительных котлов. Низкая требовательность к фракции топлива, позволит вам не переплачивать, за сортовой уголь и не беспокоится о его наличии в вашем регионе или населенном пункте. Вам не понадобится дополнительно приобретать угольную дробилку и самостоятельно заниматься подготовкой топлива для сжигания. Для предотвращения зависания топлива в бункере предусмотрен штатный ворошитель.
Автоматический котел 200 КВт работает без дымососа, дымовой трубы достаточно 6 метров. В случае установки котла в пристроенной котельной, высота трубы должна быть выше кровли прилегаемого здания.
Работа вентилятора поддува регулируется частотным приводом, что экономит потребление электроэнергии.
Развитая поверхность нагрева обеспечивает максимальный теплосъем и высокий КПД. При разработке нашего оборудования мы применяем наиболее эффективную конструкцию теплообменников – водотрубную. Теплоноситель двигается по панелям топочной камеры с высокой скоростью, делая многократные повороты по всему периметру трубных панелей. В верхней части котельного блока вода поступает в трубы, расположенные в шахматном порядке. Шахматное расположение позволяет максимально омывать поверхности нагрева и отдавать тепло теплоносителю. Высокая скорость воды в трубах сдерживает процессы отложения накипи в поверхностях нагрева и исключает их перегрев.
Конструкция теплообменников рассчитана на давление 3 кгс/см2 – это позволит вам не беспокоится о возможных течах в котле, вызванных гидроударами в системе.
Удобная и функциональная панель управления, позволяет с легкостью настраивать режимы работы автоматического котла, в зависимости о топлива, погодных условий и требований температурного режима в ваших помещениях.
При кратковременном перебое с электричеством котел автомат 200 кВт продолжает работать в том же режиме, что и до перебоя.
Управление рециркуляционным насосом обеспечивает отсутствие конденсата на поверхностях нагрева при низкой нагрузке.
Имеется автономная система пожаротушения, обеспечивающая безопасность даже при перебоях в системах электроснабжения.
В системе управлении шнековой подачи автоматического котла предусмотрена защита от заклинивания шнека при попадании породы и иных твердых включений.
Котлы с автоматической подачей угля мощностью 200 кВт г Беларусь в эксплуатации максимально просты и удобны. Геометрия бункера исключает зависание топлива. Бункер вмещает в себя не менее 400 кг топлива. В зависимости от температуры наружного воздуха, температурного режима в помещении и выбранных режимов работы на панели оператора, этого количества хватает до 7 дней «на минимальной нагрузке», в начале и окончании отопительного сезона. Дополнительную экономию топлива вы можете получить, тонко регулируя нагрузку в зависимости от времени суток и недели. Особенно это актуально для производственных, промышленных и офисных помещений, где можно снижать температуру в ночное время, и в выходные и праздничные дни.
Прежде чем купить автоматический котел на угле, на заводе в Беларуси необходимо уточнить расположение бункера - правое или левое, в последствие самостоятельно переустановить его невозможно.
Встроенный шнек автоматически удаляет образующуюся золу и шлак из котла в емкость - накопитель. Вам не понадобится останавливать и очищать котел от золы и шлака. Достаточно периодически очищать емкость для шлака, находящуюся рядом с котлом.
Стандартная комплектация автоматического котла 200 кВт производства Котельный завод РЭП:
Дополнительные опции GSM модуль.
GSM модуль - позволяет контролировать состояние котла и отопительной системы, оповещает о нештатных ситуациях при работе котла. Повышает надежность работы котельной, так как сразу информирует Вас о любых сбоях в работе.
Цена автоматического угольного котла 200 кВт включает в себя котельный блок, шнековую подачу топлива, ретортную горелку, бункер, запорную арматуру и КИП в пределах котла, вентилятор поддува и предохранительные клапаны. Ниже приведена подробная информация.
Для эффективной и надежной работы автоматического угольного котла 200 кВт в вашей котельной вам потребуется дополнительное оборудование - автоматика ЩУК, дымосос, насос сетевой и подпиточный, золоуловитель (по желанию), газоходы и переходники для газового тракта, дымовая труба. Мы предлагаем рассмотреть типовые варианты комплектации.
В случае если у вас на объекте уже имеется насосное и тягодутьевое оборудование, мы можем проверить совместимость автоматического угольного котла 200 кВт нашего производства и вашего оборудования.
Можем изготовить нестандартные узлы для выполнения быстрого монтажа котла - газоходы и узлы обвязки.
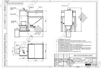
Типовую схему монтажа котла вы можете посмотреть во вкладке схемы подключения и монтаж.
Полностью автоматическое регулирование работы котла:
Водогрейный твердотопливный стальной отопительный автоматический угольный котел 200 кВт, предназначен для получения горячей воды номинальной температурой на выходе из котла от 95 до 115 °С рабочим давлением до 0,6 (6,0) МПа (кгс/см), используемой в системах централизованного теплоснабжения на нужды отопления, горячего водоснабжения. Устанавливается в производственных, промышленных и отопительных котельных.
Монтаж водогрейного автоматического угольного котла 200 кВт и вспомогательного оборудования в котельной должно производиться в соответствии с проектом и учетом требований СП 89.13330. 2016 «Котельные установки. Актуализированная редакция СНиП II-35-76» и «Правил устройства и безопасной эксплуатации паровых котлов с давлением пара не более 0,07 МПа (0,7 кгс/см2), водогрейных котлов и водоподогревателей с температурой нагрева воды не выше 388 К (115 С). Правильный монтаж котла – залог его надежной и долгой работы.
Чтобы правильно подключить автоматический угольный котел 200 кВт в котельной необходимо оставить проемы для обслуживания оборудования во время эксплуатации. На представленной здесь схеме указаны их минимальные размеры. Кроме того, в данной примерной схеме монтажа водогрейных котлов и оборудования указан перечень минимально необходимого вспомогательного оборудования для правильной работы котла.
К вспомогательному оборудованию при подключении промышленного водогрейного твердотопливного котла относят - щит управления котлом, насос циркуляционный, насос подпиточной воды, бак запаса воды, расширительный мембранный бак, дымовую трубу, систему газоходов и дымосос, золоуловитель (по желанию).
В случае если подпиточная вода не соответствует по своим характеристикам требованиям к питательной воде, необходимо предусмотреть систему водоподготовки котловой воды.
Для котельных 1 категории, являющиеся единственным источником тепла системы теплоснабжения и обеспечивающие потребителей первой категории, не имеющих индивидуальных резервных источников тепла, необходимо предусмотреть полное резервирование оборудования – подключение 2 (двух) котлов, насосов, ТДМ. Пунктиром обозначено оборудование для резервирования.
Для котельных 2 категории, включающие в себя промышленные и производственные котельные резервирование нужно предусматривать по необходимости.
Образец тепловой схемы подключения оборудования в котельной приведен на данной схеме. При эксплуатации очень важно грамотно осуществить подключение оборудования, установить все контрольно измерительные приборы, для контроля параметров работы котельной и запорную арматуру для оперативного переключения потока теплоносителя при плановой или аварийной остановке оборудования. Данную схему можно использовать как пример для разработки под свой объект или заказать у нас разработку индивидуальной схемы для вашей котельной.
Водогрейные котлы производства Котельный завод "РЭП" соответствуют строгим стандартам качества и безопасности. Завод производит котлы в соответствии с требованиями ГОСТ 30735-3001 по Техническим Условиям завода.
Котлы имеют сертификаты соответствия Техническим регламентам Таможенного союза:

Отзыв о работе котла КВр производства Котельный завод "РЭП", проработавшего на АО "Водоканал" г. Белокуриха 10 лет. Интервью предоставил заместитель главного директора по производству Суходоев Сергей Николаевич.

Интервью с главным энергетиком базового комплекса "Сводор" г. Барнаул о работе водогрейного котла нашего производства, отапливающего предприятие с 2008 года.
Котельный завод производит автоматический угольный котел для отопления мощностью 200 кВт для производства, сушильных камер, теплиц и промышленных твердотопливных водогрейных котельных.
Подобрать мощность котла по площади важно учитывая не только площадь и объем здания, но и тип зданий и климатические данные региона.
На нашем сайте калькулятор расчета мощности котла учитывает тепло, требуемое на возмещение тепловых потерь через строительные конструкции и потери, вызываемые инфильтрацией (проникновением) наружного воздуха, через их неплотности и периодически открываемые двери.
Наружный строительный объем здания должен определяться умножением площади горизонтального сечения, взятого по внешнему обводу здания на уровне первого этажа на полную высоту здания, измеренную для панельных зданий: от уровня чистого пола (нулевой отметки) до верхней плоскости теплоизоляционного слоя чердачного покрытия, для остальных строений от уровня земли.
Расчетная температура воздуха в отапливаемых зданий принимается в зависимости от типа и назначения здания:
В случае если требуется отопление различных по типу зданий, теплопотребление каждого считается отдельно, полученные значения складываются и подобрать мощность котла нужно в соответствии с общей суммарной мощностью каждого отдельно стоящего задания.
Климатические условия вашего региона принимаются в соответствии с СП 131.13330 Строительная климатология. Данные по всем регионам России занесены в наш калькулятор расчета мощности котла.
Подобрать мощность котла по площади с учетом потребностей объекта в тепле на вентиляцию и горячую воду возможно только с более детальным расчетом. Его вы можете заказать в отделе сбыта котельного завода отправив заявку на электронный адрес sb@kvzr.ru или позвонив по телефонам (38-52) 29-97-41, 29-97-42.
Эксплуатация парового котла осуществляется на основании инструкций и других нормативно-технических документов. Для тепловых энергоустановок разрабатываются также инструкция по ведению водно-химического режима и инструкция по эксплуатации установки (установок) для докотловой обработки воды с режимными картами, в которых должны быть указаны:
Инструкции и режимные карты утверждаются техническим руководителем организации и находятся на рабочих местах персонала.
Администрация предприятия обязана обеспечить содержание котлов в исправном состоянии, а также безопасные условия их работы, организовав обслуживание, ремонт и надзор.
На одного из руководящих работников предприятия (главного инженера или его заместителя, начальника производственно-технического отдела) должны быть возложены обязанности по регистрации котлов при вводе их в эксплуатацию, и контроль за соблюдением правил эксплуатации паровых котлов персоналом предприятия.
Для осуществления технического освидетельствования, обеспечения исправного состояния и постоянного контроля за безопасной эксплуатацией паровых котлов и парогенераторов администрацией предприятия должно быть назначено лицо, ответственное за исправное состояние и безопасную эксплуатацию. Указанное лицо назначается из числа инженерно-технических работников (начальник котельной района тепловых сетей, участка, старший мастер, мастер), имеющих соответствующую квалификацию и, как правило, теплотехническое образование.
В отдельных случаях безопасная эксплуатация и ответственность за исправное состояние могут быть возложены на инженерно-технического работника, не имеющего теплотехнического образования, но прошедшего подготовку в полном объеме специальной программы и сдавшего экзамен комиссии специализированного энергетического предприятия или прошедшего обучение в учебно-курсовом комбинате или институте повышения квалификации.
Назначение ответственного лица по эксплуатации парогенератора оформляется приказом по предприятию с записью номера и даты приказа в паспорт котла. На время отсутствия ответственного лица (отпуск, командировка, болезнь) исполнение его обязанностей должно быть возложено приказом на другого инженерно-технического работника, прошедшего проверку знаний Правил.
Эксплуатация паровых котлов может осуществляться лицами не моложе 18 лет, прошедшими медицинское освидетельствование, обучение и аттестацию.
Обучение и первичная аттестация машинистов (кочегаров) и операторов котельной должны проводиться в профессионально-технических училищах, учебно-курсовых комбинатах (курсах), а также на курсах, специально создаваемых предприятиями. Индивидуальная подготовка указанного персонала не допускается.
Повторные проверки знаний должны проводиться не реже одного раза в год.
Внеочередная проверка знаний осуществляется:
В процессе пусконаладочных испытаний парогенераторов и на их основе устанавливается режим работы котлов и другого оборудования котельной установки, и разрабатываются режимные карты.
Эксплуатация паровых котлов, осуществляется на основании режимных карт, утвержденных техническим руководителем организации, и находящихся на щитах управления.
Водно-химический режим должен обеспечивать работу котла без отложения накипи и шлама на тепло - воспринимающих поверхностях. Нормы качества и контроль качества питательной воды парового котла типа КП должны соответствовать «Правила технической эксплуатации тепловых энергоустановок (утв. приказом Минэнерго РФ от 24 марта 2003 г. N 115)» и ГОСТ Р 51232-98.
Цель контроля водно-химического режима - обеспечение надежной работы тепловых энергоустановок, трубопроводов и другого оборудования без повреждения и снижения экономичности, вызванных коррозией металла. Не допускать образование накипи, отложений и шлама на теплопередающих поверхностях оборудования и трубопроводах в котельных, систем теплоснабжения и теплопотребления.
Периодичность химического контроля водно-химического режима оборудования устанавливается специализированной наладочной организацией с учетом качества исходной воды и состояния действующего оборудования.
Периодичность контроля качества исходной, подпиточной воды определяется в соответствии с требованиями санитарных норм и правил. На основании периодичности составляется график химконтроля за водно-химическим режимом.
Выбор способов деаэрации питательной воды паровых котлов, способов подготовки воды для подпитки котлов, разработка технологий водоподготовки должны производиться специализированной (проектной, наладочной) организацией с учетом качества исходной (сырой) воды, назначения паровой котельной, санитарных требований к теплоносителю, требований, определяемых конструкцией теплопотребляющего оборудования, условий безопасной эксплуатации паровых котлов, технико-экономических показателей и в соответствии с требованиями заводов-изготовителей.
Внутрикотловой водно-химический режим парогенератора и его коррекция определяются специализированной наладочной организацией на основании теплотехнических испытаний.
Эксплуатация котлов без докотловой или внутрикотловой обработки воды не допускается.
В котельной необходимо вести журнал (ведомость) по водоподготовке и водно-химическому режиму котлов для записей результатов анализов воды, реагентов, о продувках котлов и операциях по обслуживанию оборудования водоподготовки в соответствии с утвержденной режимной картой и периодичностью химического контроля. При каждой остановке котла для чистки внутренних поверхностей его элементов в журнале по водоподготовке производится описание физико-механических свойств и толщины отложений, накипи и шлама.
Снятие фланцев, а также ремонт элементов котла разрешается производить только при полном отсутствии давления и полного удаления воды из трубных систем.
Выполнение работ внутри топочных устройств и газоходов допускается только при температуре не выше 50 °С по наряду-допуску.
Перед началом работ внутри котла необходимо провентилировать топочную камеру.
Запрещается производить какой-либо ремонт во время работы котла.
Эксплуатация парового котла запрещена без надзора за котлом до полного прекращения горения в топке и снижения давления до нуля;
Эксплуатирующий и ремонтный персонал должен быть обеспечен СИЗ.
Освещение паровой котельной:
Места, которые по техническим причинам нельзя обеспечить естественным светом, должны иметь электрическое освещение. Освещенность должна соответствовать СП 52.13330.
При эксплуатации парового котла необходимо исключить образование затененных областей, областей, создающих помехи, ослепление и стробоскопический эффект.
Помимо рабочего освещения в котельных должно быть аварийное электрическое освещение.
В котельных должны устанавливаться датчики загазованности для осуществления контроля и передачи сигнала на щит сигнализации или диспетчерский пункт при достижении загазованности помещения 10 % нижнего предела взрываемости природного газа и при достижении концентрации в помещении котельной 20 мг/м3 угарного газа.
Новые или реконструированные тепловые энергоустановки принимаются в эксплуатацию в порядке, установленном «Правилами технической эксплуатации тепловых энергоустановок (утв. приказом Минэнерго РФ от 24 марта 2003 г. N 115)».
Эксплуатация парового котла возможна после получения допуска в эксплуатацию новых и реконструированных тепловых энергоустановок. Допуск осуществляют органы государственного энергетического надзора на основании действующих нормативно-технических документов.
Монтаж, реконструкция паровых котлов выполняются по проекту, утвержденному и согласованному в установленном порядке. Проекты тепловых энергоустановок должны соответствовать требованиям охраны труда и природоохранным требованиям.
Перед приемкой в эксплуатацию паровых котлов проводятся приемосдаточные испытания оборудования и пусконаладочные работы отдельных элементов тепловых энергоустановок и системы в целом.
В период строительства и монтажа зданий и сооружений проводятся промежуточные приемки узлов оборудования и сооружений, в том числе оформление актов скрытых работ в установленном порядке.
Испытания оборудования и пусконаладочные испытания отдельных систем проводятся подрядчиком (генподрядчиком) по проектным схемам после окончания всех строительных и монтажных работ по сдаваемым тепловым энергоустановкам.
Перед пусконаладочными испытаниями проверяется выполнение проектных схем, строительных норм и правил, государственных стандартов, включая стандарты безопасности труда, правил техники безопасности и промышленной санитарии, правил взрыво - и пожаробезопасности, указаний заводов-изготовителей, инструкций по монтажу оборудования и наличие временного допуска к проведению пусконаладочных работ.
Перед пробным пуском парогенератора подготавливаются условия для надежной и безопасной эксплуатации паровых котлов:
Тепловые энергоустановки принимаются потребителем (заказчиком) от подрядной организации по акту. Для проведения пусконаладочных работ и опробования оборудования тепловые энергоустановки представляются органу государственного энергетического надзора для осмотра и выдачи временного разрешения.
Комплексное опробование проводится заказчиком. При комплексном опробовании проверяется совместная работа основных агрегатов и всего вспомогательного оборудования под нагрузкой.
Началом комплексного опробования тепловых энергоустановок считается момент их включения.
Комплексное опробование оборудования производится только по схемам, предусмотренным проектом.
Комплексное опробование оборудования тепловых энергоустановок считается проведенным при условии нормальной и непрерывной работы основного оборудования в течение 72 ч на основном топливе с номинальной нагрузкой и проектными параметрами теплоносителя. Комплексное опробование тепловых сетей - 24 ч.
При комплексном опробовании включаются предусмотренные проектом контрольно-измерительные приборы, блокировки, устройства сигнализации и дистанционного управления, защиты и автоматического регулирования.
Если комплексное опробование не может быть проведено на основном топливе или номинальная нагрузка и проектные параметры теплоносителя для тепловых энергоустановок не могут быть достигнуты по каким-либо причинам, не связанным с невыполнением работ, предусмотренных пусковым комплексом, решение провести комплексное опробование на резервном топливе, а также предельные параметры и нагрузки принимаются и устанавливаются приемочной комиссией и отражаются в акте приемки в эксплуатацию пускового комплекса.
Включение в работу тепловых энергоустановок производится после их допуска в эксплуатацию. Для наладки, опробования и приемки в работу тепловой энергоустановки срок временного допуска устанавливается по заявке, но не более 6 месяцев.
К моменту очередного пуска котла в ходе обычной эксплуатации подготовьте запасы топлива, материалов, инструмента и запасных частей.
Время растопки должно быть известно всему персоналу котельной.
Перед растопкой котла осмотрите топку, конвективную часть котла, воздушный и газовый тракты в отношении их чистоты, после чего плотно закройте лазы, люки и лючки.
Проверьте исправность арматуры котла. Направление вращения задвижек, вентилей, кранов, клапанов и шиберов должно соответствовать стрелкам на них. Отрегулируйте предохранительные клапана, проверьте наличие свободного прохода пара из предохранительных клапанов по сбросным трубам. Убедитесь в отсутствии заглушек на линии питания котла и сброса пара.
Проверьте герметичность и чистоту газоходов, и наличие тяги. Провентилируйте в течение 10-15 минут газоходы котла.
Проверьте исправность всех узлов топочного оборудования и готовность его к длительной работе для чего: удалите мусор из топочной камеры.
Заполните паровой котел водой: откройте дренажные вентили на котле, указателях уровня, датчике уровней и затем вентиль на питательной линии. Вентили на указателях уровня и датчике уровней закройте только после достижения среднего уровня.
Дренировать котел необходимо до прекращения выхода из штуцеров дренажной системы осевшего шлама, грязи и других посторонних включений.
Проверьте правильность автоматического регулирования питания котла водой, для чего:
Проверьте срабатывание звуковой и световой сигнализации парогенератора при упуске воды ниже аварийного уровня, для чего отключите насос и откройте продувочный вентиль. При достижении водой уровня ниже аварийного должна загореться сигнальная лампа "Авария" и включиться звуковая сигнализация.
Проверьте срабатывание звуковой и световой сигнализации при переливе воды выше аварийного уровня, для чего включите насос в ручном режиме. При достижении водой уровня выше аварийного должна загореться сигнальная лампа "Авария" и включиться звуковая сигнализация.
Проверьте настройку электроконтактного манометра на максимально-допустимое давление в котле, равное 0,5 кгс/см2.
Растопка котла должна производиться только при наличии распоряжения, записанного в сменном журнале начальником котельной.
Следите за уровнем воды в котле.
Циркуляция в котле естественная. Водно-химический режим должен обеспечивать работу котла без отложения накипи и шлама на тепло - воспринимающих поверхностях. Требования к питательной воде представлены в Таблице раздела о требованиях к питательной воде (ниже).
Периодичность химического контроля водно-химического режима парогенератора устанавливается специализированной наладочной организацией с учетом качества исходной воды и состояния действующего оборудования.
Периодичность контроля качества исходной, подпиточной воды определяется в соответствии с требованиями санитарных норм и правил. На основании периодичности составляется график химконтроля за водно-химическим режимом.
Выбор способов деаэрации питательной воды паровых котлов, способов подготовки воды для подпитки котлов, разработка технологий водоподготовки должны производиться специализированной (проектной, наладочной) организацией с учетом качества исходной (сырой) воды, назначения котельной, санитарных требований к теплоносителю, требований, определяемых конструкцией теплопотребляющего оборудования, условий безопасной эксплуатации, технико-экономических показателей и в соответствии с требованиями заводов-изготовителей.
Внутрикотловой водно-химический режим и его коррекция определяются специализированной наладочной организацией на основании теплотехнических испытаний.
Эксплуатация паровых котлов без докотловой или внутрикотловой обработки воды не допускается.
Во время дежурства персонал котельной должен следить за исправностью котла и всего его оборудования котельной и строго соблюдать установленный режим работы котла.
Выявленные неисправности должны записываться в сменный журнал. Персонал должен принимать немедленные меры к устранению неисправностей, угрожающих безопасной работе котла.
В случае отключения подачи электроэнергии, ухудшения тяги, остановке насоса, немедленно прекратить подачу топлива в котел через горелку.
Все приборы и устройства управления и безопасности котла должны поддерживаться в исправном состоянии и регулярно проверяться.
Необходимо регулярно проводить продувку котла. Не реже двух раз в смену через дренажный штуцер. Время проведения и результаты продувки заносить в вахтенный журнал.
Не реже одного раза в месяц производить осмотр и очистку от сажи хвостовой части котла.
При химической очистке внутренних котла, моющие реагенты вводятся через дренажный штуцер.
Периодически, но не реже чем через 12 месяцев, необходимо производить профилактический осмотр котла и его элементов. При этом обращайте особое внимание на выявление возможных трещин, отдулин, выпучин и коррозии на наружной и внутренней поверхностях стенок, нарушений плотности и прочности сварных соединений.
Остановка котла во всех случаях, кроме аварийной, должна производиться только по получении письменного распоряжения администрации.
При остановке парового котла необходимо прекратить подачу топлива в топку.
Запрещается оставлять котел без надзора снижения давления до нуля.
Обслуживающий персонал котельной обязан немедленно остановить котел при возникновении следующих аварийных случаев:
Пpи необходимости аварийной остановки котла прекратить подачу топлива через горелку. Снять напряжение со щита управления.
Запрещается оставлять котел без надзора до снижения давления до нуля.
Причина аварийной остановки должна быть отражена в сменном журнале.
При появлении повреждений и неисправностей котла и вспомогательного оборудования, не требующих немедленной остановки котла, обслуживающий персонал обязан срочно уведомить об этом администрацию.
Нормы качества и контроль качества питательной воды парового котла должны соответствовать «Правила технической эксплуатации тепловых энергоустановок (утв. приказом Минэнерго РФ от 24 марта 2003 г. N 115)» и ГОСТ Р 51232-98.
Для питания котлов водой допускается применение центробежных и поршневых насосов с электрическим приводом.
Периодичность химического контроля водно-химического режима оборудования устанавливается специализированной наладочной организацией с учетом качества исходной воды и состояния действующего оборудования.
Периодичность контроля качества исходной, подпиточной воды парогенератора определяется в соответствии с требованиями санитарных норм и правил. На основании периодичности составляется график химконтроля за водно-химическим режимом.
Внутрикотловой водно-химический режим и его коррекция определяются специализированной наладочной организацией на основании теплотехнических испытаний.
Эксплуатация паровых котлов без докотловой или внутрикотловой обработки воды не допускается.
Дополнительные требования к питательной воде для парового котла типа КП указаны в таблице.
Таблица - требования к питательной воде
Показатель | Единица измерения | значение |
прозрачность, по кольцу, не менее | см | 20 |
жесткость общая, не более | мкг экв/л | 100 |
содержание кислорода, не более | мкг/л | 100 |
РН | единицы PH | 8,5-10,5 |
Во время эксплуатации парового котла необходимо периодически, не реже двух раз в смену, удалять шлам из котла. Для этого открыть вентиля на дренажных и продувочных штуцерах котла, указателей уровня и датчика уровней. Спускать воду до прекращения выхода из штуцеров осевшего шлама. Точное число продувок определяется при наладке водно-химического режима котла.
Очистку внутренних поверхностей нагрева от накипи производить химическим путем с привлечением специализированной организации.
Очистку внутренних поверхностей производить при длительных остановках котла, но не реже одного раза в 6 месяцев.
В котельной необходимо вести журнал (ведомость) по водоподготовке и водно-химическому режиму котлов для записей результатов анализов воды, пара, конденсата, реагентов, о продувках парогенераторов и операциях по обслуживанию оборудования водоподготовки в соответствии с утвержденной режимной картой и периодичностью химического контроля. При каждой остановке котла для чистки внутренних поверхностей его элементов в журнале по водоподготовке производится описание физико-механических свойств и толщины отложений, накипи и шлама.
Раз в месяц производить остановку котла.
Очистку конвективной части котла осуществлять путем обдувкой сжатым воздухом при помощи компрессора до полной очистки поверхностей нагрева.
Не реже одного раза в смену проверять работу предохранительного клапана, для чего вручную поднимать рычаги до появления воды из выкидного трубопровода.
При остановке котла по окончании сезона, либо при остановке на длительное время следует спустить воду из котла, промыть, очистить котел от грязи и накипи, газоходы от сажи, затем заполнить котел и систему водой, удалив остатки воздуха через воздушный вентиль.
Котел должен подвергаться администрацией техническому освидетельствованию до пуска в работу, периодически - в процессе эксплуатации парового котла (согласно установленным срокам) и в необходимых случаях - досрочно.
Техническое освидетельствование котлов должно проводить лицо, ответственное за исправное состояние и безопасную эксплуатацию парового котла.
Техническое освидетельствование котла состоит из наружного, внутреннего осмотров и гидравлического испытания.
Наружный и внутренний осмотры имеют целью:
При наружном и внутреннем осмотрах котла и его элементов должно быть обращено внимание на выявление возможных трещин, надрывов, отдулин, выпучин и коррозии на внутренней и наружной поверхностях стенок, нарушений плотности и прочности сварных соединений, а также повреждений обмуровки, которые могут вызвать перегрев металла элементов котла.
Гидравлическое испытание котлов имеет целью проверку прочности элементов котла и плотности их соединений и проводится в порядке, установленном п.п. 3.16 и 3.17 «Правил устройства и безопасной эксплуатации паровых котлов с давлением пара не более 0,07 МПа (0,7 кгс/см2), водогрейных котлов и водоподогревателей с температурой нагрева воды не выше 388 К (115 °С)».
Администрация обязана проводить освидетельствование котлов в следующие сроки:
Досрочное (внеочередное) техническое освидетельствование котла должно выполняться в случаях, если:
Перед гидравлическим испытанием в обязательном порядке должны быть произведены наружный и внутренний осмотры.
Перед внутренним осмотром и гидравлическим испытанием котел должен быть охлажден и тщательно очищен от накипи, сажи. При сомнении в исправном состоянии стенок или швов ответственный за безопасную эксплуатацию котлов должен вскрыть обмуровку или снять изоляцию полностью или частично.
Если при техническом освидетельствовании парогенератора не будут обнаружены дефекты, снижающие его прочность, он допускается в эксплуатации при рабочих параметрах.
Если при техническом освидетельствовании котла окажется, что он имеет дефекты, вызывающие сомнение в его прочности, дальнейшая эксплуатация парового котла должна быть запрещена до устранения этих дефектов.
Результаты освидетельствования и заключение о возможности работы котла с указанием разрешенных параметров (давления, температуры) и сроков следующего освидетельствования должны быть записаны в паспорт котла лицом, производящим освидетельствование.
При досрочном освидетельствовании котла указывают причину, вызвавшую необходимость такого освидетельствования.
1.1. Гидравлическому испытанию подлежат все новые или реконструированные тепловые энергоустановки после завершения монтажных работ.
1.2. Опрессовка и гидравлическое испытание котлов проводится давлением не менее 1,25 Рраб.
1.3. Опрессовка и гидравлическое испытание котлов проводиться водой температурой не ниже 5 ⁰С и не выше 40 ⁰С. Применение холодной воды (5-15 ⁰С) для испытаний может вызывать выпадения влаги на поверхностях объекта испытаний. Применение воды температуры выше 40 ⁰С может быть травмоопасно. Используемая для гидравлического испытания вода не должна загрязнять объект или вызывать интенсивную коррозию.
1.4. Проведение гидравлических испытаний котлов на плотность проводятся в следующем порядке:
Давление воды при испытании контролируется по манометрам, установленными на подводящем и отводящем трубопроводах котла согласно приложению А.
1.5. Контролируемые параметры при гидравлических испытаниях:
В случае выявления падения давления согласно показаниям манометров, проводиться визуальный контроль.
Манометры и показывающие приборы, должны быть установлены согласно схеме.
Акт гидравлического испытания котлов образец | |
| № | «___» ________ 20___ г. |
| Начальник производства | фамилия, инициалы |
| Мастер смены | фамилия, инициалы |
| Работник, проводивший испытания | фамилия, инициалы |
| Произвели осмотр и проверку качества сборки | наименование изделия, заводской номер |
| и составили акт о нижеследующем: | |
| 1. Сборка | наименование изделия, вид проектной, технологической документации |
| 2. В процессе сборки внесены следующие отступления от технической документации | перечень отступлений |
| согласованные | должность, фамилия, инициалы |
| 3. Котел испытан гидростатическим методом пробным давлением | _____МПа (_____кгс/см2) в течении _______мин. |
| 4. В течение времени нахождения под пробным давлением падение давления | наблюдалось или не наблюдалось |
| 5. В течение времени нахождения под максимальным рабочим давлением ___МПа (___кгс/см2) | отсутствие или наличие дефектов |
| Принято решение: | |
| Котел (признается или не признается) выдержавшим испытание гидростатическим методом. | |
| Начальник производства | фамилия, инициалы, подпись |
| Мастер смены | фамилия, инициалы, подпись |
| Работник, проводивший испытания | фамилия, инициалы, подпись |
Акт гидравлического испытания котлов образец (скачать в Word)
Акт гидравлического испытания котлов образец (скачать в pdf)